Проект MM - 62
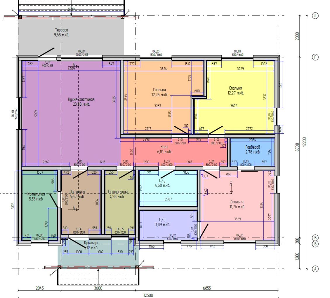
Площадь: 156 кв.м
Срок строительства: 2 месяца
Планировка: прихожая, большая кухня - гостиная с выходом на веранду, котельная, с/у, 3 спальни
Комплектация дома
Дом строится из сосновых пород дерева.
Фундамент:
Железобетонный ленточный фундамент.
Глубина 80 см, ширина 30 см.
Цоколь: песко-бетонные блоки 20x30x60.
Высота цоколя от земли: 60 см. на верхней точке.
Цоколь засыпается песком и трамбуется, разводится канализация (не менее 5 точек).
После трамбовки песка идет обвязка железной арматурой (10), далее заливается бетоном, по грунту укладывается пенополистирол (толщина 5 см.), далее прокладывается фольгированная подложка, сетка карта 100x100, размывается тёплый пол из шитого полиэтилена диаметром 16, делается сухая стяжка (толщина в районе 8 см).
Бетон - марки М-300.
Стены:
Каркас: брус, сечение 100x150мм, 50x150мм, 50x50мм (добор для перехлёстного утепления), утеплитель 200мм. с вентиляционным фасадом 0.25мм.
Обработка огне-биозащитой и антисептиком.
Утепление: (толщина каркаса) 200мм. Технониколь в 4 слоя с гидро-ветроизоляцией - мембрана Изоспан А.
Пароиэоляция: Пленка Изоспан с проклейкой швов (крепится степлером к стойкам каркаса, лагам, балкам).
Гидроизоляция: Изоспан.
Крыша:
Стропильная система - каркасный брус, сечение 200x50мм, обрешетка 100x25мм.
Утепление 200мм. (Технониколь) в 4 слоя.
Кровля: металлочерепица GRAND LINE, толщиной 0.45мм., укладывается и закрепляется по контробрешетке по ветрозащитной паропроницаемой мембране.
Трубы снегозадержатели GRAND LINE в цвет кровли.
Водосточная система GRAND LINE пластик 135мм.
Внутренняя отделка: имитация бруса (толщина 17мм., ширина 140мм.)
Наружная отделка: имитация бруса 17x145мм., металлический сайдинг GRAND LINE.
Окна ПВХ: двойной стеклопакет в три стекла. Водотливы - из гладкой листовой стали. Москитные сетки.
Двери: входная металлическая утепленная с терморазрывом.
Межкомнатные двери с ручками и петлями.
Плитка: керамогранит.
Потолок: натяжные потолки.
Электрика: Внутренние стены дома имеют дополнительные маяки для закладки проводов по электрике (провод 3x2.5мм. в гофр рукаве на розетки, провод 3x1.5мм. в гофр рукаве на свет и выключатели).
Канализация: септик.